Technická data
Informace technického charakteru vztahující se k nemovitosti.
elektřina
- Kompletně nová elektřina 220V.
odpad
- Nemovitost je napojena na veřejnou splaškovou kanalizaci ve správě VAK Beroun.
dešťová voda
- Vedená do retenční nádrže
- Retenční nádrž: Graf Carat 6500l
voda
- Studna
topení
- Tepelné čerpadlo IVT EQ E13 s výbavou a elektrokotlem
- Dva hlubinné vrty, cca 2x 100m, vč sondy 2x40mm GEROTOP
- Šachta: PAK 92 MINI, 2 okruhy včetně rozdělovače sběrače
- Potrubí: Na zatažení vrtů GEROTOP FAST RC
- Páteřní potrubí: GEROTOP 50 × 4,6
- Akumulační nádoba IVT BC300
- Vnitřní IVT LCD čidlo
- Kachlová kamna ve světnici a obývacím pokoji
Ohřev TUV
- Zásobník IVT DS 300 R + čidlo
- Připojení tepelného čerpadla k zásobníku TUV
energetický štítek
- soubor v příloze
internet
- Telefonní kabel. Internet 100 Mbit/s na ADSL modemu
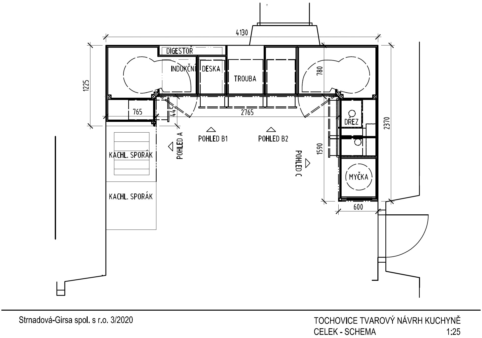
spotřebiče
- Dřez: Villeroy&Boch
- Trouba: Siemens
- Varná deska: Siemens
- Odsavač par: Siemens
- Myčka nádobí: Siemens (vestavná)
parkování
- Na vlastním pozemku nebo na návsi před domem.
pozemek
- 1626 m2
Dispozice
- 5+1 (vč. prosklené přístavby)
- Přízemí - hlavní koupelna + koupelna se sprchovým koutem a WC
- Podkroví - koupelna se sprchovým koutem a WC
- Sklep
informace
- Další informace na vyžádání
Soubory ke stažení
- stáhnout soubor SituaceSituace
Velikost souboru: 391,09 kB
- stáhnout soubor PřístavbaPřístavba
Velikost souboru: 2,49 MB
- stáhnout soubor KuchyněKuchyně
Velikost souboru: 239,60 kB
- stáhnout soubor Dispozice domuDispozice domu
Velikost souboru: 197,60 kB
- stáhnout soubor Půdorysy a řezyPůdorysy a řezy
Velikost souboru: 1,57 MB
- stáhnout soubor PENBPENB
Velikost souboru: 297,50 kB