Technická data
Informace technického charakteru vztahující se k nemovitosti.
Elektřina
- Do objektu je zavedena standardní elektrická přípojka 400V.
Voda
Nemovitost má vlastní studnu.
Odpad
- Na zahradě se nachází jímka pro odpadní vodu. Při rekonstrukci je počítáno s ČOV.
Vjezdová brána
- Vjezd na pozemek je obsluhován automatickou bránou na dálkové ovládání.
Energetický štítek
- Není k dispozici, takže uvádíme - G.
Základní informace
- Objekt tvoří dvě části - hlavní stavba loveckého zámečku a navazující stodola.
- Hlavní objekt je třípodlažní + podkroví (půda), zastavěná plocha 215 m2
- Stodola je jednopodlažní o zastavěné ploše 78 m2
- Užitná plocha celého objektu vyjma půdního prostoru je cca 500 m2
- Přízemí: 260 m2 včetně stodoly. První patro: 160 m2. Suterén: 120 m2. Půdní prostor cca 60 m2.
Internet
- Bezproblémový dosah signálu O2 5G
Pozemek
- 1.752 m2
Soubory ke stažení
- stáhnout soubor Suterén - čistý půdorysSuterén - čistý půdorys
Velikost souboru: 164,55 kB
- stáhnout soubor Přízemí - čistý půdorysPřízemí - čistý půdorys
Velikost souboru: 185,35 kB
- stáhnout soubor První patro - čistý půdorysPrvní patro - čistý půdorys
Velikost souboru: 161,60 kB
- stáhnout soubor Suterén - připravovaný projektSuterén - připravovaný projekt
Velikost souboru: 3,54 MB
- stáhnout soubor Přízemí - připravovaný projektPřízemí - připravovaný projekt
Velikost souboru: 3,63 MB
- stáhnout soubor První patro - připravovaný projektPrvní patro - připravovaný projekt
Velikost souboru: 3,19 MB
- stáhnout soubor Pohled sever | řez - připravovaný projektPohled sever | řez - připravovaný projekt
Velikost souboru: 498,94 kB
- stáhnout soubor Pohled jih | západ - připravovaný projektPohled jih | západ - připravovaný projekt
Velikost souboru: 465,16 kB
- stáhnout soubor Suterén - půdorysSuterén - půdorys
Velikost souboru: 329,33 kB
- stáhnout soubor Přízemí - půdorys varianta APřízemí - půdorys varianta A
Velikost souboru: 584,04 kB
- stáhnout soubor Přízemí - půdorys varianta BPřízemí - půdorys varianta B
Velikost souboru: 591,50 kB
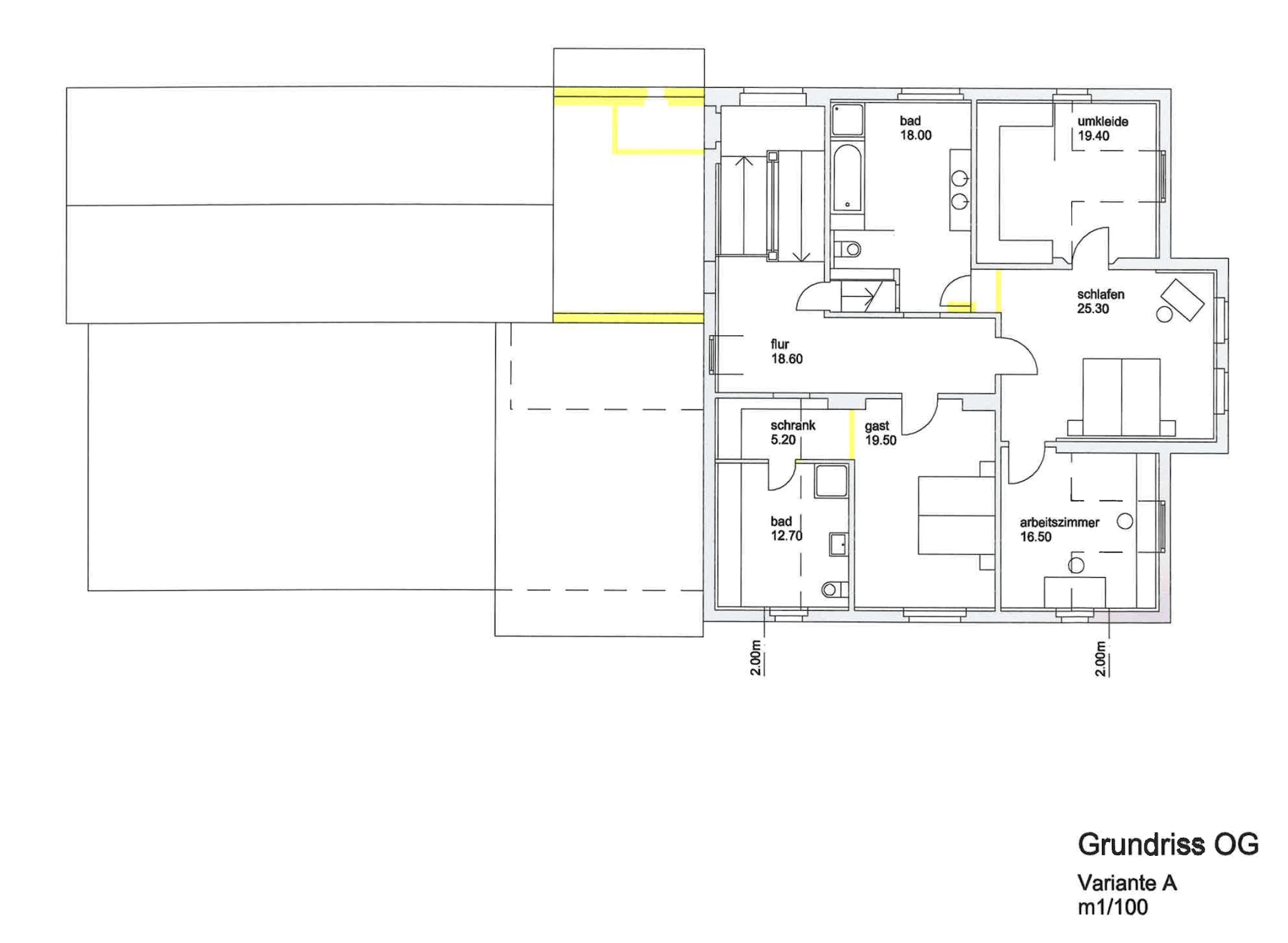
- stáhnout soubor První patro - půdorys varianta APrvní patro - půdorys varianta A
Velikost souboru: 410,01 kB
- stáhnout soubor První patro - půdorys varianta BPrvní patro - půdorys varianta B
Velikost souboru: 428,69 kB
- stáhnout soubor VýměryVýměry
Velikost souboru: 109,60 kB