Inspirace
Fotografie malého designového domku, které by Vás mohly inspirovat.
design | komfort
Fotogalerie

- Předkládáme Vám fotografickou inspiraci malého designového domku.
- Udělejte si představu o možnostech a úrovni komfortu, který Vám může takový objekt nabídnout.
- Designový domek v této inspirativní sekci prodejní prezentace sami vlastníme, jde tedy o reálné a námi vytvořené fotografie.
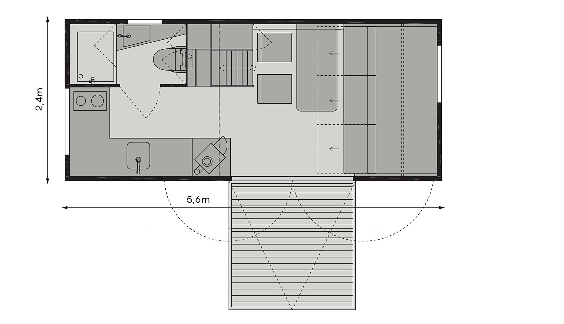
půdorys

- Půdorys designového domku na fotografiích v této sekci je 5,6m x 2,4m
detail | prostor

- Prostor je využitý do posledního milimetru a promyšlený tak účelně, že plně nahradí byt o velikosti 2+kk.
- Všude, kde je to jen trochu možné, jsou vytvořeny úložné prostory, které zajišťují neustále uklizený, čistý a vzdušný prostor.
kuchyně

- Kompletně vybavená kuchyně obsahuje vše, co očekáváte od komfortního rekreačního bydlení; vestavná lednice, vestavná myčka, vinotéka i elektrický kávovar.
ložnice

- V podkrovní ložnici se můžete pohodlně posadit. Je opatřena špičkovou matrací a prosvětlena velkým střešním oknem se zatemňovací roletou a sítí proti hmyzu.
- Spaní při otevřeném okně a čistém vzduchu je doslova za odměnu :)
vytápění

- Centrální vytápění je ovládané stejně jako celý domek pomocí chytré domácnosti. Objekt je vybaven také samostatnou klimatizační jednotkou.
- Zatopíte si pomocí mobilní aplikace před Vaším příjezdem na "chalupu" nebo před příchodem z procházky.
- Dalším zdrojem tepla jsou špičková litinová kamna Jotul, která domek vytopí během několika minut s "nulovou" spotřebou dřeva.
- Pohled na plápolající oheň v kamnech je již "jen" romantickou přidanou hodnotou.
inteligentní dům | variabilita

- Obytný prostor je maximálně variabilní.
- Sklopný dřevěný stůl je dostatečně velký, aby se zde pohodlně usadili čtyři dospělí.
- Vyvýšené sezení slouží zároveň jako postel s velkým integrovaným úložným prostorem a výsuvnou postelí, díky níž zde mohou komfortně přespat celkem čtyři lidé.
- Pro pohodlný spánek v zimních měsících je objekt vybaven také rekuperační jednotkou, která domek v průběhu celé noci jemně provětrává.
- Mimo již výše uvedených technologií je součástí vybavení také zabezpečovací zařízení, kamerový systém, chytrá televize ve formě obrazu, centrální sound systém, elektrické a dálkově ovládané zatemňovací rolety a kompletní ambientní osvětlení s možností stmívání a ovládání přes mobilní telefon.
koupelna

- Perfektně ergonomicky uspořádaná koupelna s přirozeným osvětlením a větráním má sprchový kout i umyvadlo navržené přímo na míru z corianu.
- Koupelna je dále vybavena ambientním osvětlením, elektrickým odvětráním a vestavným úložným prostorem.










